Centro, 4 dormitorios, con parking
Ref. 1532
Datos Generales
Buen estado
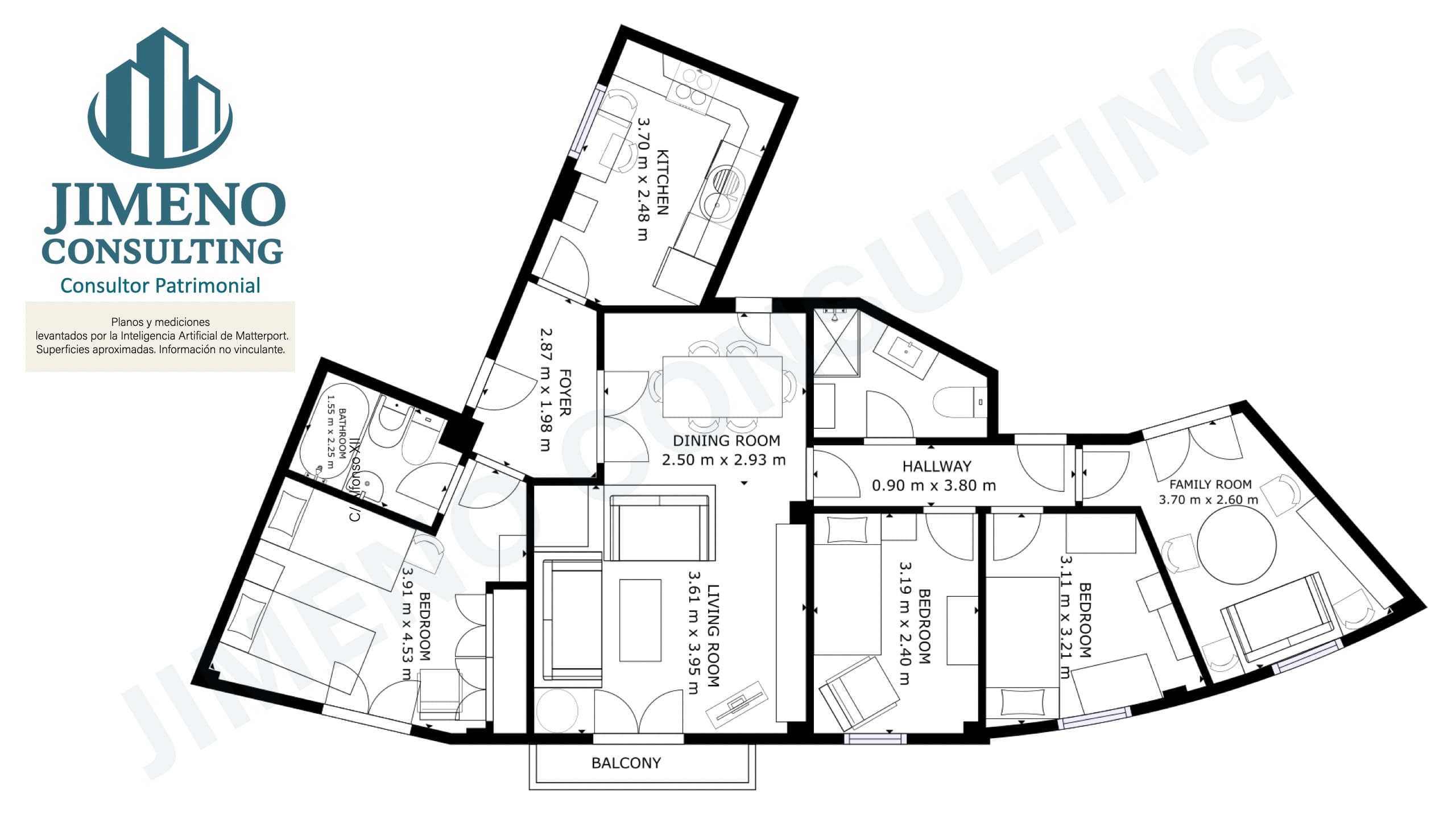
95.2 m² construidos
82.9 m² útiles
4 dormitorios
2 baños
Sureste
1980 - 46 años.
Ascensor
Aire acondicionado
Garaje
Centro, 4 dormitorios, con parking
Ref. 1532
Descripción de la Propiedad
¡NUESTROS SERVICIOS SON GRATIS PARA EL COMPRADOR!
Amplio piso exterior de 4 dormitorios en pleno centro de Sevilla con parking.
En una de las calles más demandadas del centro, Almirante Hoyos, se encuentra este magnífico piso exterior de 95 m² construidos, ideal para quienes buscan espacio, luz y una ubicación privilegiada.
La vivienda dispone de 4 dormitorios, todos exteriores, 2 baños (uno en suite), salón amplio con balcón a la calle y cocina amueblada. Cuenta además con tres armarios empotrados, alacena en el salón y climatización por split en salón y dormitorio principal.
Edificio con ascensor, orientación sureste, muy luminoso y con vistas directas a la calle. Piso bien conservado, con un enorme potencial para adaptarlo a un proyecto de vivienda familiar o inversión de alto nivel.
Como valor añadido, el edificio dispone de parking exterior comunitario para uso exclusivo de los vecinos.
Ubicación excepcional, a un paso de todo: comercio, cultura, servicios y la vida del centro histórico de Sevilla.
Una oportunidad única para vivir o invertir en el corazón de la ciudad.
Llámanos y te enseñamos la visita virtual del inmueble, desde la comodidad de tu teléfono móvil caminarás por dentro de la vivienda como si allí estuvieras, y si te gusta lo que ves, ya concertamos una cita para visitarlo in situ.
NOTA IMPORTANTE: Información al consumidor conforme a la Ley 10/2025, de 26 de diciembre: El precio indicado no incluye impuestos ni gastos de compraventa (notaría, registro o gestoría). Nuestros honorarios son GRATIS para el comprador. La información mostrada es meramente informativa y carece de valor contractual, pudiendo sufrir modificaciones por motivos técnicos o administrativos. El anunciante es Jimeno Consulting 1987 SL, con domicilio en calle Sierra de Gibalbin, 17 y teléfono de atención al cliente 618269196, donde podrá formular consultas o reclamaciones. Las fotografías, textos y precios se publican conforme a criterios de veracidad, transparencia y accesibilidad exigidos por la normativa vigente. Las reseñas y valoraciones de Google o similar, proceden exclusivamente de clientes que han contratado efectivamente los servicios ofrecidos. No se aplican algoritmos ni sistemas automáticos que alteren el precio mostrado en función del perfil del usuario.
.png&w=640&q=75)















